본문 바로가기

"made with Burim"

안전하고 친환경적인 건축시장을 부림산기㈜가 함께 만들어 가겠습니다.

상담 및 견적문의

  • HOME
  • 고객센터
  • 상담 및 견적문의

견적부탁드립니다.

페이지 정보

작성자 에너테크 작성일25-10-24 16:09 조회127회 댓글1건

본문

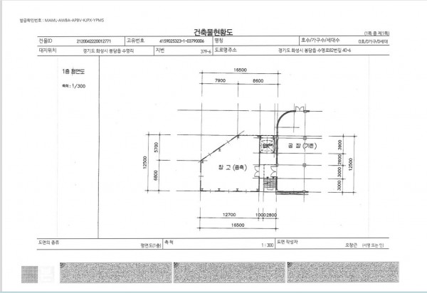
경기도 화성시 봉담읍 수영리 379-6번지 공장 건물에 시공 가능하시면 견적부탁드리겠습니다.

에너테크 010-3741-8293 김동빈

댓글목록

부림산기님의 댓글

부림산기 작성일

안녕하세요?
부림산기입니다.
남겨주신 연락처로 담당자가 전화드리고 견적 보내드리겠습니다.
감사합니다.